廣東.中山三鄉鎮市民廣場
發布日期:2019-04-23 點擊數:484
項目概況
項目名稱:廣東.中山三鄉鎮市民廣場
項目地址:廣東.中山三鄉鎮市
項目面積:16000平方米
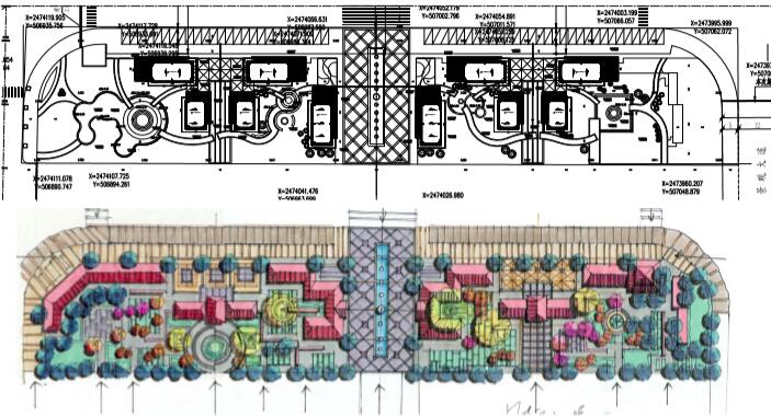
本方案設計面積為16000平方米,其中分為三塊地,一塊地為一層街邊綠地公園,一塊為商業四層屋頂花園,一塊為商業五層屋頂花園。 一層街邊綠地公園以自然生態為主要表達方式,在其中布局部分小商業建筑,建筑面積在500平方米以內,一層街邊綠地公園是銜接景觀豪庭商業建筑和三鄉鎮市民廣場過渡地段,目的是為鄉鎮市民提供一處休閑、娛樂及小商業的綠地空間。
在設計地塊中心是一長條形的旱噴景觀,是游園主要的景觀節點,達到吸引人群,增強空間氛圍,是休閑市民進入商場的主要廊道。 地塊兩側分別設置三五處活動節點,為前來游園的人提供開放、半私密、及私密空間,功能上有商業空間、 休閑空間、娛樂空間等,用自由的曲線道路把各個景觀節點有效得聯系起來。
四層屋頂花園,結合建筑的主要功能使用要求,把四層的商業業態擴展到屋頂花園,以便把室內外商 業功能有機聯系在一起,設計主要傾向于規整劃一的形態特征,以中央軸線劃分為左右基本對稱的室 外休閑商業廣場,供戶外業主進行商業餐飲等活動。緊貼四層建筑長條外墻處設置一些茶座,用木制 格柵進行間隔,營造相對私密場所,增強商業景觀的獨特性。 靠近樓梯間及洗手間設置五根景觀燈柱,一方面阻隔樓梯間給四層屋頂花園帶來的生硬感,另一方面 在夜晚營造獨特的夜景燈光效果,起到整個屋頂花園的畫龍點睛之筆。 其他配套設施如長條木制座椅、花池、小品等有序排列開來。
五層屋頂花園以自然為主要導向,把中國古典園林中的廊、徑、石、步道結合現代設計手法,簡潔大方舒展開來。用一條自由婉約的小徑,把各個休閑活動場所串聯起來。


上一篇:海南文昌銅鼓嶺山頂公園下一篇:湖南長沙同升湖山莊規劃及建筑設計
項目名稱:廣東.中山三鄉鎮市民廣場
項目地址:廣東.中山三鄉鎮市
項目面積:16000平方米
本方案設計面積為16000平方米,其中分為三塊地,一塊地為一層街邊綠地公園,一塊為商業四層屋頂花園,一塊為商業五層屋頂花園。 一層街邊綠地公園以自然生態為主要表達方式,在其中布局部分小商業建筑,建筑面積在500平方米以內,一層街邊綠地公園是銜接景觀豪庭商業建筑和三鄉鎮市民廣場過渡地段,目的是為鄉鎮市民提供一處休閑、娛樂及小商業的綠地空間。
在設計地塊中心是一長條形的旱噴景觀,是游園主要的景觀節點,達到吸引人群,增強空間氛圍,是休閑市民進入商場的主要廊道。 地塊兩側分別設置三五處活動節點,為前來游園的人提供開放、半私密、及私密空間,功能上有商業空間、 休閑空間、娛樂空間等,用自由的曲線道路把各個景觀節點有效得聯系起來。
四層屋頂花園,結合建筑的主要功能使用要求,把四層的商業業態擴展到屋頂花園,以便把室內外商 業功能有機聯系在一起,設計主要傾向于規整劃一的形態特征,以中央軸線劃分為左右基本對稱的室 外休閑商業廣場,供戶外業主進行商業餐飲等活動。緊貼四層建筑長條外墻處設置一些茶座,用木制 格柵進行間隔,營造相對私密場所,增強商業景觀的獨特性。 靠近樓梯間及洗手間設置五根景觀燈柱,一方面阻隔樓梯間給四層屋頂花園帶來的生硬感,另一方面 在夜晚營造獨特的夜景燈光效果,起到整個屋頂花園的畫龍點睛之筆。 其他配套設施如長條木制座椅、花池、小品等有序排列開來。
五層屋頂花園以自然為主要導向,把中國古典園林中的廊、徑、石、步道結合現代設計手法,簡潔大方舒展開來。用一條自由婉約的小徑,把各個休閑活動場所串聯起來。



相關內容